モルタルと木と時々ピンク
【北千住】
- 72㎡
- 非公開
施工データ
- 使用した自然素材
再生材料*
- 家族構成
- ご夫婦2名
- 平米数
- 72㎡
- 工事費用
- 非公開
- 建物タイプ
- マンション
- 施工期間
- 3か月
リノベーションのきっかけ
家の購入を検討していた当初はリノベーションという選択肢がなかったので、
内容を聞いた時は目から鱗で、内装や細部まで自分たちで決めていけるのは、
こだわりが強い僕ら夫婦にとってとても魅力的に感じました。
ご提案のポイント
ご夫婦のブレないリノベの好みがあり、全力で寄り添い提案させていただきました。
グレートーンにアクセントで木目やブラック等。
最後までブレずにトーンの統一ができたかと思います。
再生材料*=製造工程で製品とならなかったものや通常は廃棄処分されていたものを再生活用した材料
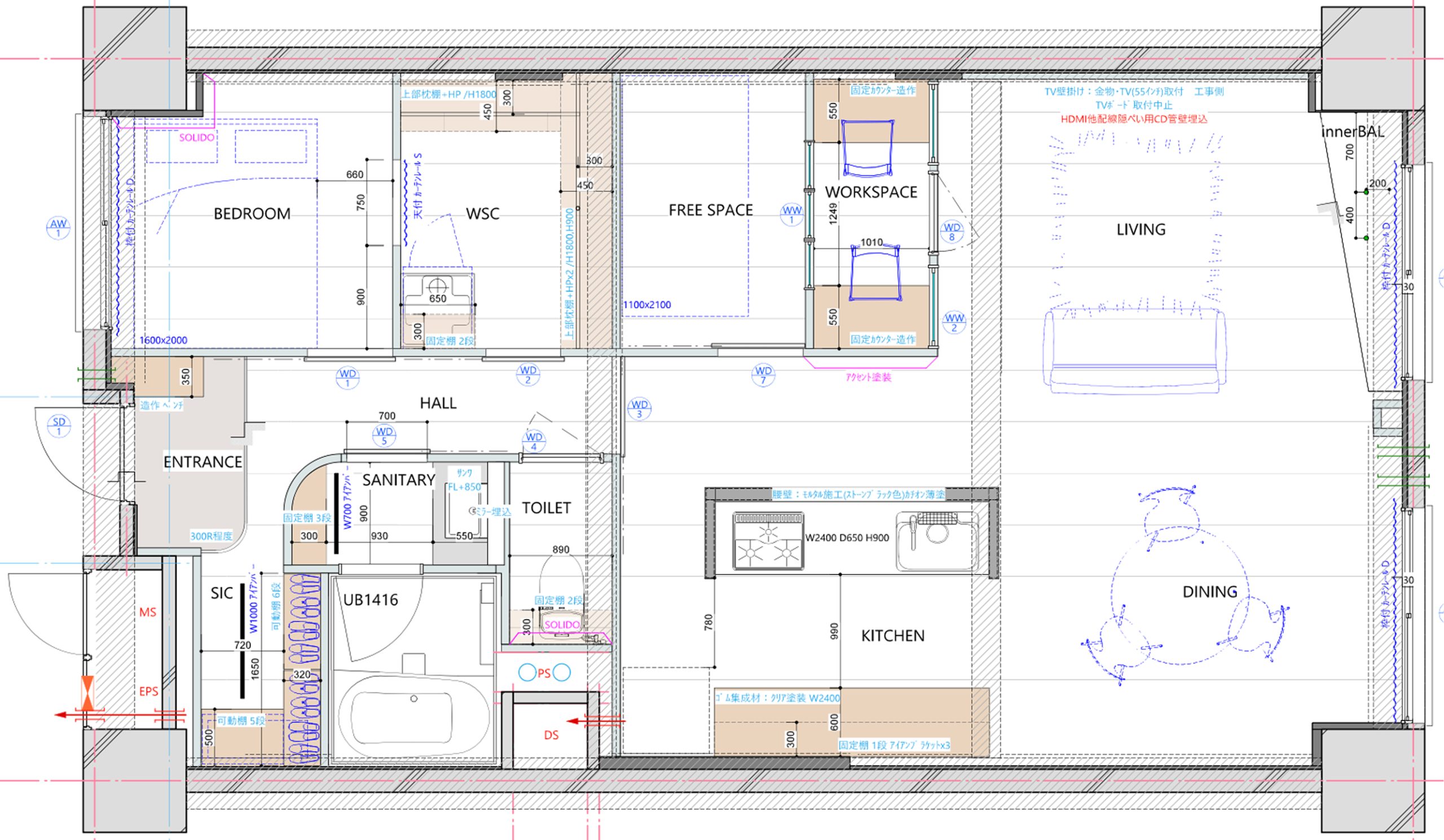
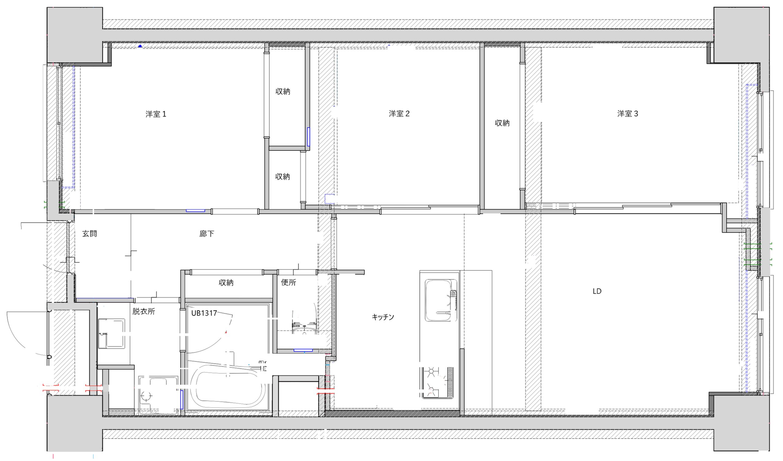
リノベーションBefore After
Before
After
こだわりの施工箇所
キッチン天井のS字ラインは現場の方もかなり大変な納まりだったかと思いますが、クロスの仕上がりまで打合せを行い、キレイに仕上げることができました。
お客様の声
実際に住み始めてから約4ヶ月が経過しましたが、結論大満足です。
スケルトン状態から間取りも決めていったので理想の暮らしができています。
ただ、実際に住み始めると「もう少しここが、、」というのは必ず出てくるので、
次のライフステージに差し掛かった時にもう一度お願いしたいと思っています。笑
それくらい皆さんすごく親身になってこちらの要望を聞いていただき、理想の家が出来上がりました。
本当にありがとうございました。
